Продукция




Осевые вентиляторы низкого давления


Общие сведенияocevoi big.jpg

Низкого давления. Количество лопаток - 3, 4, 5. Конструктивное исполнение 1 и 2 (по направлению потока).

Назначение

Предназначены дня перемещения воздуха и других неагрессивных газовых смесей с температурой не выше 80°С с содержанием липких и волокнистых материалов, запыленностью не более 10 мг/м3. Применяются в системах вентиляции и воздушного отопления производственных, общественных и жилых зданий и других санитарно-технических и производственных целях.

Варианты изготовления:

- общего назначения из углеродистой стали;
- взрывозащищенные из разнородных металлом.

Условия эксплуатации

Температура окружающей среды от -40°С до +40°С. Умеренный климат, 2-я и 3-я категория размещения.



Вентилятор ВО14-320-6,3

Комплектация электродвигателем

Типоразмер вентилятора

Конст-е исп-е

Типоразмер двигателя

Мощ-ть двиг-я, кВт

Частота вращения рабочего колеса, об/мин

Произ-ть, тыс.м3

Полное давление, Па

Номер ТУ

Масса вент-ра не более, кг

ВО14-320-6,3

1,2

АИР71А6
АИР80А4

0,37
1,1

915
1395

7,0-9,9
10,4-15,5

95-65
230-150

4861-012-08560276-03

45
48

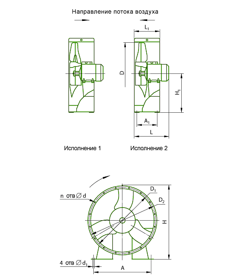
Габаритные и присоединительные размеры

A, мм

A1, мм

H, мм

H1, мм

Lmax, мм

D, мм

D2, мм

D1, мм

d, мм

d1, мм

n, мм

L1, мм

Кол-во лопаток, шт

550

210

720

375

415

630

660

635

7

15

16

300

5

Габаритные и присоединительные размеры:

3.png

Аэродинамическая характеристика

33_1.png


Вентилятор ВО14-320-5

Комплектация электродвигателем

Типоразмер вентилятора

Конст-е исп-е

Типоразмер двигателя

Мощ-ть двиг-я, кВт

Частота вращения рабочего колеса, об/мин

Произ-ть, тыс.м3

Полное давление, Па

Номер ТУ

Масса вент-ра не более, кг

ВО14-320-5

1,2

АИР63В4

0,37

1320

4,6-6,5

145-75

4861-012-08560276-03

26,5

Габаритные и присоединительные размеры

A, мм

A1, мм

H, мм

H1, мм

Lmax, мм

D, мм

D2, мм

D1, мм

d, мм

d1, мм

n, мм

L1, мм

Кол-во лопаток, шт

450

140

590

310

352

500

530

505

7

15

16

260

4

Габаритные и присоединительные размеры:

320 5.png



Вентилятор ВО14-320-4

Комплектация электродвигателем

Типоразмер вентилятора Конст-е исп-е Типоразмер двигателя Мощ-ть двиг-я, кВт Частота вращения рабочего колеса, об/мин Произ-ть, тыс.м3 Полное давление, Па Номер ТУ Масса вент-ра не более, кг
ВО14-320-5 1,2 АИР56В4 0,18 1320 2,3-3,7 90-53 4861-012-08560276-03 19,8

Габаритные и присоединительные размеры

A, мм A1, мм H, мм H1, мм Lmax, мм D, мм D2, мм D1, мм d, мм d1, мм n, мм L1, мм Кол-во лопаток, шт
360 140 410 250 390 400 430 404 7 15 16 250 3

Габаритные и присоединительные размеры:


Аэродинамическая характеристика

 


Вентилятор ВО14-320-3,15

Комплектация электродвигателем

Типоразмер вентилятора Конст-е исп-е Типоразмер двигателя Мощ-ть двиг-я, кВт Частота вращения рабочего колеса, об/мин Произ-ть, тыс.м3 Полное давление, Па Номер ТУ
ВО14-320-3,15 1,2 4АА56В4 0,18 1410 1,5 40 4861-012-08560276-03

Габаритные и присоединительные размеры

A, мм A1, мм H, мм H1, мм Lmax, мм D, мм D2, мм D1, мм d, мм d1, мм n, мм L1, мм Кол-во лопаток, шт
310 120 357 167 215 315 350 318 7 12 8 152 3

Габаритные и присоединительные размеры:

 



Вентилятор ВО14-320-10В

Комплектация электродвигателем

Типоразмер вентилятора Констр-е исп-е Типоразмер двигателя Мощ-ь двиг-я, кВт Частота вращения рабочего колеса, об/мин Произв-ть, тыс.м3 Полное давление, Па Номер ТУ Масса вент-ра не более, кг
ВО14-320-10В 1,2 АИР112MA6 0,12 950 25,3-37,0 220-140 4861-012-08560276-03 167

Габаритные и присоединительные размеры

A, мм A1, мм H, мм H1, мм Lmax, мм D, мм D2, мм D1, мм d, мм d1, мм n, мм L1, мм Кол-во лопаток, шт
900 350 1150 610 593 1000 1045 1005 10 20 16 400 4

Габаритные и присоединительные размеры:


Аэродинамическая характеристика




Вентилятор ВО14-320-8В

Комплектация электродвигателем

Типоразмер вентилятора Констр-е исп-е Типоразмер двигателя Мощ-ть двиг-я, кВт Частота вращения рабочего колеса, об/мин Производи-тельность, тыс.м3 Полное давление, Па Номер ТУ Масса вент-ра не более, кг
ВО14-320-8В 1,2 АИМ100S4 3 1410 21,0-27,7 320-200 4861-012-08560276-03 122

Габаритные и присоединительные размеры

A, мм A1, мм H, мм H1, мм Lmax, мм D, мм D2, мм D1, мм d, мм d1, мм n, мм L1, мм Кол-во лопаток, шт
750 280 955 495 520 795 840 805 10 20 16 350 3

Габаритные и присоединительные размеры:


Аэродинамическая характеристика




Вентилятор ВО14-320-6,3В

Комплектация электродвигателем

Типоразмер вентилятора Констр-е исп-е Типоразмер двигателя Мощ-ть двиг-я, кВт Частота вращения рабочего колеса, об/мин Произ-ть, тыс.м3 Полное давление, Па Номер ТУ Масса вент-ра не более, кг
ВО14-320-6,3В 1,2 АИМ71А6
АИМ80А4
0,37
1,1
915
1395
7,0-9,9
10,4-15,5
95-65
230-150
4861-012-08560276-03 47,3
55,1

Габаритные и присоединительные размеры

A, мм A1, мм H, мм H1, мм Lmax, мм D, мм D2, мм D1, мм d, мм d1, мм n, мм L1, мм Кол-во лопаток, шт
550 210 720 375 415 630 660 635 7 15 16 300 5

Габаритные и присоединительные размеры:


Аэродинамическая характеристика




Вентилятор ВО14-320-5В

Комплектация электродвигателем

Типоразмер вентилятора Конст-е исп-е Типоразмер двигателя Мощ-ть двиг-ля, кВт Частота вращения рабочего колеса, об/мин Произ-ть, тыс.м3 Полное давление, Па Номер ТУ Масса вент-ра не более, кг
ВО14-320-5В 1,2 АИМ63В4 0,37 1320 4,6-6,5 145-75 4861-012-08560276-03 34,5

Габаритные и присоединительные размеры

A, мм A1, мм H, мм H1, мм Lmax, мм D, мм D2, мм D1, мм d, мм d1, мм n, мм L1, мм Кол-во лопаток, шт
450 140 590 310 352 500 530 505 7 15 16 260 4

Габаритные и присоединительные размеры:


Аэродинамическая характеристика




Вентилятор ВО14-320-4В

Комплектация электродвигателем

Типоразмер вентилятора Конст-ое исп-ие Типоразмер двигателя Мощ-ть двиг-ля, кВт Частота вращения рабочего колеса, об/мин Произ-ть, тыс.м3 Полное давление, Па Номер ТУ Масса вент-а не более, кг
ВО14-320-4В 1,2 АИМ63А4 0,25 1320 2,3-3,7 90-53 4861-012-08560276-03 30

Габаритные и присоединительные размеры

A, мм A1, мм H, мм H1, мм Lmax, мм D, мм D2, мм D1, мм d, мм d1, мм n, мм L1, мм Кол-во лопаток, шт
360 140 410 250 390 400 430 404 7 15 16 250 3

Габаритные и присоединительные размеры:


Аэродинамическая характеристика




Вентилятор ВО14-320-12,5

Комплектация электродвигателем

Типоразмер вентилятора Конст-е исп-е Типоразмер двигателя Мощ-ть двиг-я, кВт Частота вращения рабочего колеса, об/мин Произ-ть, тыс.м3 Полное давление, Па Номер ТУ Масса вент-ра не более, кг Тип вибр-а Количество вибр-в
ВО14-320-12,5 1,2 АИР112MB8
АИР132M6
3
7,5
720
960
35,0-53,5
47,5-72,0
193-125
340-220
4861-012-08560276-03 175
210
ДО41 4

Габаритные и присоединительные размеры

A, мм A1, мм H, мм H1, мм Lmax, мм D, мм D2, мм D1, мм d, мм d1, мм n, мм L1, мм Кол-во лопаток, шт
1100 450 1420 750 620 1250 1295 1253 10 20 16 460 5

Габаритные и присоединительные размеры:


Аэродинамическая характеристика




Вентилятор ВО14-320-10

Комплектация электродвигателем

Типоразмер вентилятора Конст-е исп-е Типоразмер двигателя Мощ-ть двиг-ля, кВт Частота вращения рабочего колеса, об/мин Произ-ть, тыс.м3 Полное давление, Па Номер ТУ Масса вент-ра не более, кг Тип вибр-ра Кол-во вибр-в
ВО14-320-10 1,2 АИР112MA6 3 950 25,3-37,0 220-140 4861-012-08560276-03 130 ДО40 4

Габаритные и присоединительные размеры

A, мм A1, мм H, мм H1, мм Lmax, мм D, мм D2, мм D1, мм d, мм d1, мм n, мм L1, мм Кол-во лопаток, шт
900 350 1150 610 593 1000 1045 1005 10 20 16 400 4

Габаритные и присоединительные размеры:


Аэродинамическая характеристика




Вентилятор ВО14-320-8

Комплектация электродвигателем

Типоразмер вентилятора Конст-е исп-е Типоразмер двигателя Мощ-ть двиг-я, кВт Частота вращения рабочего колеса, об/мин Произ-ть, тыс.м3 Полное давление, Па Номер ТУ Масса вент-ра не более, кг Тип вибр-ра Кол-во вибр-в
ВО14-320-10 1,2 АИР100S4 3 1410 21,0-27,7 320-200 4861-012-08560276-03 88 ДО39 4

Габаритные и присоединительные размеры

A, мм A1, мм H, мм H1, мм Lmax, мм D, мм D2, мм D1, мм d, мм d1, мм n, мм L1, мм Кол-во лопаток, шт
750 280 955 495 520 795 840 805 10 20 16 350 3

Габаритные и присоединительные размеры:


Аэродинамическая характеристика




Вентилятор ВО14-320-12,5В

Комплектация электродвигателем

Типоразмер вентилятора Конст-е исп-е Типоразмер двигателя Мощ-ть двиг-я, кВт Частота вращения рабочего колеса, об/мин Произ-ть, тыс.м3 Полное давление, Па Номер ТУ Масса вент-ра не более, кг
ВО14-320-12,5В 1,2 АИМ112MB8
АИМ132M6
3
7,5
720
960
35,0-53,5
47,5-72,0
193-125
340-220
4861-012-08560276-03 207
240

Габаритные и присоединительные размеры

A, мм A1, мм H, мм H1, мм Lmax, мм D, мм D2, мм D1, мм d, мм d1, мм n, мм L1, мм Кол-во лопаток, шт
1100 450 1420 750 620 1250 1295 1253 10 20 16 460 5

Габаритные и присоединительные размеры:


Аэродинамическая характеристика




Вентилятор ВО14-320-2,5

Комплектация электродвигателем

Типоразмер вентилятора Констр-ое исполн-е Типоразмер двигателя Мощ-ь двиг-я, кВт Частота вращения рабочего колеса, об/мин Произв-ь, тыс.м3 Полное давление, Па Номер ТУ
ВО14-320-2,5 1,2 4АА56А4 0,12 1410 0,95 32 4861-012-08560276-03

Габаритные и присоединительные размеры

A, мм A1, мм H, мм H1, мм Lmax, мм D, мм D2, мм D1, мм d, мм d1, мм n, мм L1, мм Кол-во лопаток, шт
260 120 310 155 215 250 280 253 7 12 8 152 3

Габаритные и присоединительные размеры:





Cопутствующие товары

Похожие товары


ULTRATHERM.jpg



term_rez.jpg

Алмазное бурение бетона





ASEA WELDING (Ю. Корея), BDS MASCHINEN (Германия), CAM SPRAY (США), CARDI (Италия), CEDIMA (Германия), CEVISA (Испания), Comet (Италия), CUES (США), DINAJET (Германия), DOHLE (Германия), DR. BENDER (Германия), Durma (Турция), DWT Babcock (Германия), EIBENSTOCK (Германия), ELECTRIC EEL (США), ERMAKSAN (Турция), EUROBOOR (Нидерланды), EVOLUTION GROUP (Великобритания), EXACT TOOLS OY (Финляндия), Facot Chemicals (Италия), FEIN (Германия), FEMI, FOOTAGE TOOLS (Канада), G.DREXL (Германия), GENERAL INDUSTRIAL (США), GERAT (Германия), GOODWAY (США), GRIT (Германия), GSC (Тайвань), HELVI (Италия), HERZ (Германия), HI-FORCE (Великобритания), Hitronic (Китай), HONGLI (Китай), HURNER (Германия), HUSQVARNA (Швеция), HYDROPATH (Великобритания), Hypertherm (США), IBIX (Италия), Jouanel (Франция), KAIYUAN (Китай), KARNASCH (Германия), KERN (Германия), Ketter (Польша), KOIKE (Япония), KRANZLE (Германия), KROLL (Германия), LAVAL UNDERGROUND SURVEYS (США), LEISTER (Швейцария), MACC (Италия), MAGNABEND (Австралия), MAGTRON (Великобритания), Mazanek (Польша), MetalMaster (Европа и ЮВА), NORBAR (Великобритания), O.M.I.S.A (Италия), OMCA (Италия), Pfaff-silberblau (Германия), PIPAL® Chemicals (Италия), PROFARC (Китай), PROMOTECH (Польша), PWT (Китай), REED (США), REMS (Германия), REX (Япония), RIDGID (США), Ritmo (Италия), ROBUPLAST (Турция), ROTHENBERGER (Германия), RUKO (Германия), Sahinler (Турция), SAV (Германия), SCHECHTL (Германия), SPARTAN (США), SPICOM (Россия), STALEX (Польша), StrongHandTools (США), Tapco (США), TECHNOMAGNETE (Италия), US JETTING (С.Ш.А.), VAN MARK (США), VETTER (Германия), VHT (Бельгия), VIRAX (Франция), VOLL (Беларусь), WEKA (Германия), WELPING (Китай), WOPSON (Гонконг), Yale (Германия), Yawei (Япония-Германия), ZINSER Schweisstechnik (Германия), ВЕКТОР (Беларусь), Витязь (Россия), НИТЛ (Россия), СИБИРЬ (Россия), СПИКОМЭНЕРГО (Россия)




svarka_plas-1.jpg