Продукция




Котел водогрейный КВр-0,2


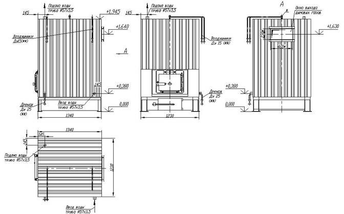
Котел КВр-0,2

*-патрубок для очистки поверхностей нагрева (по греющей стороне) сжатым воздухом;
**-воздушные и дренажные трубопроводы в комплект поставки котла не входят.

Котел КВр-0,2 Р изготавливаемый с колосниковым топочным устройством предназначен для получения горячей воды температурой 95 С° используемой для отопления бытовых и производственных помещений объемом 6000 м3, а также технологических нужд предприятий. Топливоподача и шлакозолоудаление осуществляется вручную. Котел КВр-0,2 Р не требует установки вентилятора поддува и дымососа.

Модификация котла КВр-0,2 ОУР с водоохлаждаемой уголковой решеткой позволяющей значительно форсировать процесс горения. Котельно-вспомогательное оборудование- вентилятор поддува ВЦ 14-46 №2,5, 0,55 кВт/1350 об/мин. Установка дымососа не требуется.

В комплект поставки котла входит трубный блок в облегченной теплоизоляции, топочная дверка, топочное устройство, запорная и предохранительная арматура, контрольно-измерительные приборы.

ТЕХНИЧЕСКИЕ ХАРАКТЕРИСТИКИ Котла Квр-0,2

Теплопроизводительность, МВт (Гкал/ч)

0,2(0,17)

Рабочее давление воды, МПа (кгс/см2)

0,3-0,6 (3-6)

Температура воды на входе/на выходе, 0 С°

70/95

Расход воды через котел, м3/ч

6,8

Расход топлива,кг/ч

Кузнецкий Д,5230 ккал/кг

40

Харанорский Б1,2720ккал/кг

80

Гидравлическое сопротивление, МПа

0,03

Аэродинамическое сопротивление, Па

не более 60

Температура дымовых газов на выходе из котла, 0 С°

200

КПД котла,%

80,4/78,1

Габаритные размеры в легкой обмуровке с металлической обшивкой LхBхH, мм

1340х1230х1945

Ориентировочный отапливаемый объем, м3

6000



Cопутствующие товары

Похожие товары


ULTRATHERM.jpg



term_rez.jpg

Алмазное бурение бетона





ASEA WELDING (Ю. Корея), BDS MASCHINEN (Германия), CAM SPRAY (США), CARDI (Италия), CEDIMA (Германия), CEVISA (Испания), Comet (Италия), CUES (США), DINAJET (Германия), DOHLE (Германия), DR. BENDER (Германия), Durma (Турция), DWT Babcock (Германия), EIBENSTOCK (Германия), ELECTRIC EEL (США), ERMAKSAN (Турция), EUROBOOR (Нидерланды), EVOLUTION GROUP (Великобритания), EXACT TOOLS OY (Финляндия), Facot Chemicals (Италия), FEIN (Германия), FEMI, FOOTAGE TOOLS (Канада), G.DREXL (Германия), GENERAL INDUSTRIAL (США), GERAT (Германия), GOODWAY (США), GRIT (Германия), GSC (Тайвань), HELVI (Италия), HERZ (Германия), HI-FORCE (Великобритания), Hitronic (Китай), HONGLI (Китай), HURNER (Германия), HUSQVARNA (Швеция), HYDROPATH (Великобритания), Hypertherm (США), IBIX (Италия), Jouanel (Франция), KAIYUAN (Китай), KARNASCH (Германия), KERN (Германия), Ketter (Польша), KOIKE (Япония), KRANZLE (Германия), KROLL (Германия), LAVAL UNDERGROUND SURVEYS (США), LEISTER (Швейцария), MACC (Италия), MAGNABEND (Австралия), MAGTRON (Великобритания), Mazanek (Польша), MetalMaster (Европа и ЮВА), NORBAR (Великобритания), O.M.I.S.A (Италия), OMCA (Италия), Pfaff-silberblau (Германия), PIPAL® Chemicals (Италия), PROFARC (Китай), PROMOTECH (Польша), PWT (Китай), REED (США), REMS (Германия), REX (Япония), RIDGID (США), Ritmo (Италия), ROBUPLAST (Турция), ROTHENBERGER (Германия), RUKO (Германия), Sahinler (Турция), SAV (Германия), SCHECHTL (Германия), SPARTAN (США), SPICOM (Россия), STALEX (Польша), StrongHandTools (США), Tapco (США), TECHNOMAGNETE (Италия), US JETTING (С.Ш.А.), VAN MARK (США), VETTER (Германия), VHT (Бельгия), VIRAX (Франция), VOLL (Беларусь), WEKA (Германия), WELPING (Китай), WOPSON (Гонконг), Yale (Германия), Yawei (Япония-Германия), ZINSER Schweisstechnik (Германия), ВЕКТОР (Беларусь), Витязь (Россия), НИТЛ (Россия), СИБИРЬ (Россия), СПИКОМЭНЕРГО (Россия)




svarka_plas-1.jpg